The Holiday Inn Express® Portimão, located in Algarve, is a 7-floor boutique hotel rehabilitation spanning 2,956 sqm. This state-of-the-art project revitalizes the old Tropimar Hotel, offering 60 rooms, a gym, pool, restaurant, and gardens.
The Holiday Inn Express® Portimão, located in Algarve, is a 7-floor boutique hotel rehabilitation spanning 2,956 sqm. This state-of-the-art project revitalizes the old Tropimar Hotel, offering 60 rooms, a gym, pool, restaurant, and gardens.
The Holiday Inn Express® in central Portimão, Algarve, presents an exceptional investment opportunity in a prime location, just minutes from the Portimão football stadium, Praia da Rocha, and the Marina. This state-of-the-art hotel development features top-tier amenities, including a gym, pool, gardens, and a restaurant, all while adhering to the latest regulations. The project is a complete rehabilitation of the former Tropimar Hotel ruin, restoring its historic charm and bringing new vibrancy to the neighborhood. This development not only offers high potential returns but also contributes to the local community by revitalizing a key area of Portimão, making it a highly attractive investment in one of Portugal’s most sought-after regions.
The Holiday Inn Express Portimão, formerly the Tropimar Hotel, undergoes an extensive architectural rehabilitation. The pre-construction phase involves structural reinforcement, façade restoration, and interior spatial reconfiguration to meet modern hospitality standards. This transformation enhances energy efficiency, optimises guest experience, and revitalises a historic building, integrating contemporary design with sustainable construction techniques while preserving the Algarve’s architectural heritage.
The Holiday Inn Express Portimão, formerly the Tropimar Hotel, undergoes an extensive architectural rehabilitation. The pre-construction phase involves structural reinforcement, façade restoration, and interior spatial reconfiguration to meet modern hospitality standards. This transformation enhances energy efficiency, optimises guest experience, and revitalises a historic building, integrating contemporary design with sustainable construction techniques while preserving the Algarve’s architectural heritage.
The Holiday Inn Express Portimão, formerly the Tropimar Hotel, undergoes an extensive architectural rehabilitation. The pre-construction phase involves structural reinforcement, façade restoration, and interior spatial reconfiguration to meet modern hospitality standards. This transformation enhances energy efficiency, optimises guest experience, and revitalises a historic building, integrating contemporary design with sustainable construction techniques while preserving the Algarve’s architectural heritage.
The Holiday Inn Express Portimão, formerly the Tropimar Hotel, undergoes an extensive architectural rehabilitation. The pre-construction phase involves structural reinforcement, façade restoration, and interior spatial reconfiguration to meet modern hospitality standards. This transformation enhances energy efficiency, optimises guest experience, and revitalises a historic building, integrating contemporary design with sustainable construction techniques while preserving the Algarve’s architectural heritage.
The Holiday Inn Express Portimão, formerly the Tropimar Hotel, undergoes an extensive architectural rehabilitation. The pre-construction phase involves structural reinforcement, façade restoration, and interior spatial reconfiguration to meet modern hospitality standards. This transformation enhances energy efficiency, optimises guest experience, and revitalises a historic building, integrating contemporary design with sustainable construction techniques while preserving the Algarve’s architectural heritage.
The Holiday Inn Express Portimão, formerly the Tropimar Hotel, undergoes an extensive architectural rehabilitation. The pre-construction phase involves structural reinforcement, façade restoration, and interior spatial reconfiguration to meet modern hospitality standards. This transformation enhances energy efficiency, optimises guest experience, and revitalises a historic building, integrating contemporary design with sustainable construction techniques while preserving the Algarve’s architectural heritage.
The Holiday Inn Express Portimão, formerly the Tropimar Hotel, undergoes an extensive architectural rehabilitation. The pre-construction phase involves structural reinforcement, façade restoration, and interior spatial reconfiguration to meet modern hospitality standards. This transformation enhances energy efficiency, optimises guest experience, and revitalises a historic building, integrating contemporary design with sustainable construction techniques while preserving the Algarve’s architectural heritage.
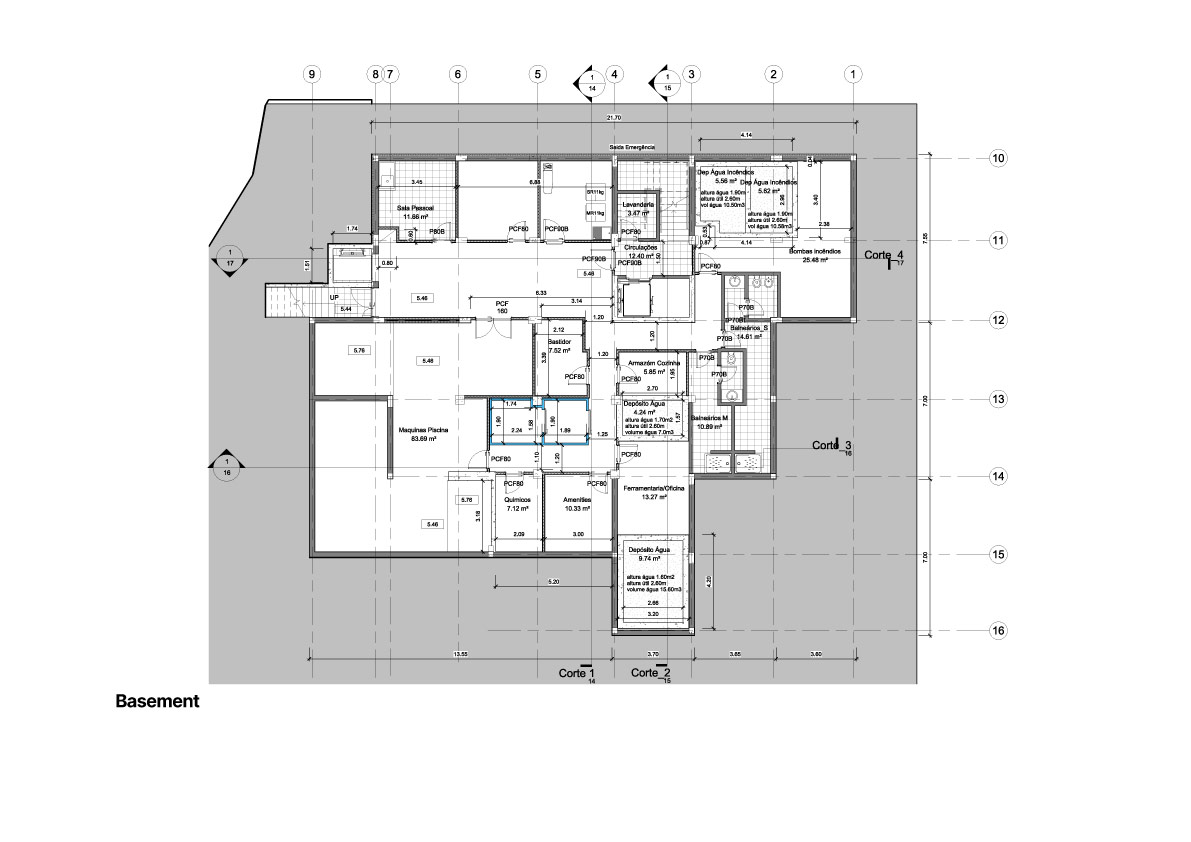
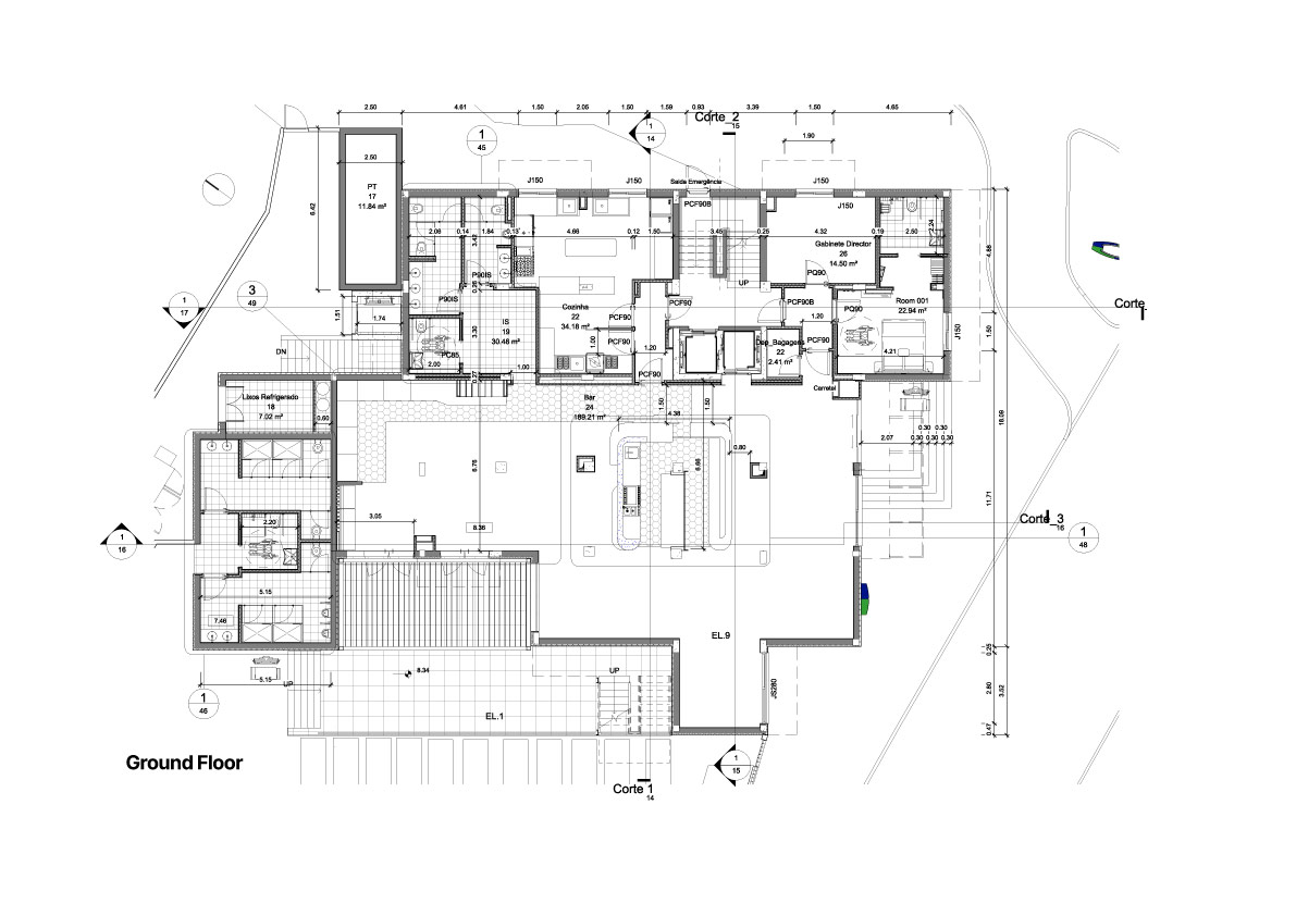
The upcoming Holiday Inn Express in Portimão, Algarve, is a contemporary hospitality project integrating functional design with modern architectural principles. The floorplans reveal a well-structured layout, featuring a spacious reception, a restaurant terrace, and an expansive outdoor pool area. The basement accommodates essential back-of-house facilities, while the ground floor optimises guest experience with open, light-filled spaces, ensuring comfort and operational efficiency.
The upcoming Holiday Inn Express in Portimão, Algarve, is a contemporary hospitality project integrating functional design with modern architectural principles. The floorplans reveal a well-structured layout, featuring a spacious reception, a restaurant terrace, and an expansive outdoor pool area. The basement accommodates essential back-of-house facilities, while the ground floor optimises guest experience with open, light-filled spaces, ensuring comfort and operational efficiency.
The upcoming Holiday Inn Express in Portimão, Algarve, is a contemporary hospitality project integrating functional design with modern architectural principles. The floorplans reveal a well-structured layout, featuring a spacious reception, a restaurant terrace, and an expansive outdoor pool area. The basement accommodates essential back-of-house facilities, while the ground floor optimises guest experience with open, light-filled spaces, ensuring comfort and operational efficiency.
The upcoming Holiday Inn Express Portimão redefines contemporary hospitality with its sleek architectural form, spacious balconies, and an inviting poolside retreat. Designed with modern functionality in mind, the interiors showcase an elegant interplay of natural materials, minimalist décor, and warm ambient lighting. Featuring a stylish lobby, sophisticated dining area, and tranquil guest suites, this development epitomises comfort and refined aesthetics in the Algarve.
The upcoming Holiday Inn Express Portimão redefines contemporary hospitality with its sleek architectural form, spacious balconies, and an inviting poolside retreat. Designed with modern functionality in mind, the interiors showcase an elegant interplay of natural materials, minimalist décor, and warm ambient lighting. Featuring a stylish lobby, sophisticated dining area, and tranquil guest suites, this development epitomises comfort and refined aesthetics in the Algarve.
The upcoming Holiday Inn Express Portimão redefines contemporary hospitality with its sleek architectural form, spacious balconies, and an inviting poolside retreat. Designed with modern functionality in mind, the interiors showcase an elegant interplay of natural materials, minimalist décor, and warm ambient lighting. Featuring a stylish lobby, sophisticated dining area, and tranquil guest suites, this development epitomises comfort and refined aesthetics in the Algarve.
The upcoming Holiday Inn Express Portimão redefines contemporary hospitality with its sleek architectural form, spacious balconies, and an inviting poolside retreat. Designed with modern functionality in mind, the interiors showcase an elegant interplay of natural materials, minimalist décor, and warm ambient lighting. Featuring a stylish lobby, sophisticated dining area, and tranquil guest suites, this development epitomises comfort and refined aesthetics in the Algarve.
The upcoming Holiday Inn Express Portimão redefines contemporary hospitality with its sleek architectural form, spacious balconies, and an inviting poolside retreat. Designed with modern functionality in mind, the interiors showcase an elegant interplay of natural materials, minimalist décor, and warm ambient lighting. Featuring a stylish lobby, sophisticated dining area, and tranquil guest suites, this development epitomises comfort and refined aesthetics in the Algarve.
The upcoming Holiday Inn Express Portimão redefines contemporary hospitality with its sleek architectural form, spacious balconies, and an inviting poolside retreat. Designed with modern functionality in mind, the interiors showcase an elegant interplay of natural materials, minimalist décor, and warm ambient lighting. Featuring a stylish lobby, sophisticated dining area, and tranquil guest suites, this development epitomises comfort and refined aesthetics in the Algarve.
The upcoming Holiday Inn Express Portimão redefines contemporary hospitality with its sleek architectural form, spacious balconies, and an inviting poolside retreat. Designed with modern functionality in mind, the interiors showcase an elegant interplay of natural materials, minimalist décor, and warm ambient lighting. Featuring a stylish lobby, sophisticated dining area, and tranquil guest suites, this development epitomises comfort and refined aesthetics in the Algarve.
The upcoming Holiday Inn Express Portimão redefines contemporary hospitality with its sleek architectural form, spacious balconies, and an inviting poolside retreat. Designed with modern functionality in mind, the interiors showcase an elegant interplay of natural materials, minimalist décor, and warm ambient lighting. Featuring a stylish lobby, sophisticated dining area, and tranquil guest suites, this development epitomises comfort and refined aesthetics in the Algarve.
The Holiday Inn Express Portimão redevelopment integrates contemporary construction methodologies with rigorous architectural detailing. Structural reinforcements and steel framing enhance load-bearing capacity, while façade restoration modernises the building envelope. The interior layout is being optimised with partitioning for functional flow and acoustics. Scaffolded exterior works facilitate cladding upgrades, ensuring energy efficiency. This transformation delivers a refined hospitality environment aligned with international standards in design and sustainability.
The Holiday Inn Express Portimão redevelopment integrates contemporary construction methodologies with rigorous architectural detailing. Structural reinforcements and steel framing enhance load-bearing capacity, while façade restoration modernises the building envelope. The interior layout is being optimised with partitioning for functional flow and acoustics. Scaffolded exterior works facilitate cladding upgrades, ensuring energy efficiency. This transformation delivers a refined hospitality environment aligned with international standards in design and sustainability.
The Holiday Inn Express Portimão redevelopment integrates contemporary construction methodologies with rigorous architectural detailing. Structural reinforcements and steel framing enhance load-bearing capacity, while façade restoration modernises the building envelope. The interior layout is being optimised with partitioning for functional flow and acoustics. Scaffolded exterior works facilitate cladding upgrades, ensuring energy efficiency. This transformation delivers a refined hospitality environment aligned with international standards in design and sustainability.
The Holiday Inn Express Portimão redevelopment integrates contemporary construction methodologies with rigorous architectural detailing. Structural reinforcements and steel framing enhance load-bearing capacity, while façade restoration modernises the building envelope. The interior layout is being optimised with partitioning for functional flow and acoustics. Scaffolded exterior works facilitate cladding upgrades, ensuring energy efficiency. This transformation delivers a refined hospitality environment aligned with international standards in design and sustainability.
The Holiday Inn Express Portimão redevelopment integrates contemporary construction methodologies with rigorous architectural detailing. Structural reinforcements and steel framing enhance load-bearing capacity, while façade restoration modernises the building envelope. The interior layout is being optimised with partitioning for functional flow and acoustics. Scaffolded exterior works facilitate cladding upgrades, ensuring energy efficiency. This transformation delivers a refined hospitality environment aligned with international standards in design and sustainability.
The Holiday Inn Express Portimão redevelopment integrates contemporary construction methodologies with rigorous architectural detailing. Structural reinforcements and steel framing enhance load-bearing capacity, while façade restoration modernises the building envelope. The interior layout is being optimised with partitioning for functional flow and acoustics. Scaffolded exterior works facilitate cladding upgrades, ensuring energy efficiency. This transformation delivers a refined hospitality environment aligned with international standards in design and sustainability.
The Holiday Inn Express Portimão redevelopment integrates contemporary construction methodologies with rigorous architectural detailing. Structural reinforcements and steel framing enhance load-bearing capacity, while façade restoration modernises the building envelope. The interior layout is being optimised with partitioning for functional flow and acoustics. Scaffolded exterior works facilitate cladding upgrades, ensuring energy efficiency. This transformation delivers a refined hospitality environment aligned with international standards in design and sustainability.
The Holiday Inn Express Portimão project is a contemporary hospitality redevelopment, featuring a streamlined façade with functional balconies and an external staircase. The interior embraces a modern aesthetic with minimalist furnishings, warm wood accents, and recessed lighting. Guest rooms incorporate ergonomic layouts, soft textures, and muted tones, ensuring comfort. The refined communal areas, including a stylish reception and dining space, embody a cohesive architectural vision for effortless guest experiences.
The Holiday Inn Express Portimão project is a contemporary hospitality redevelopment, featuring a streamlined façade with functional balconies and an external staircase. The interior embraces a modern aesthetic with minimalist furnishings, warm wood accents, and recessed lighting. Guest rooms incorporate ergonomic layouts, soft textures, and muted tones, ensuring comfort. The refined communal areas, including a stylish reception and dining space, embody a cohesive architectural vision for effortless guest experiences.
The Holiday Inn Express Portimão project is a contemporary hospitality redevelopment, featuring a streamlined façade with functional balconies and an external staircase. The interior embraces a modern aesthetic with minimalist furnishings, warm wood accents, and recessed lighting. Guest rooms incorporate ergonomic layouts, soft textures, and muted tones, ensuring comfort. The refined communal areas, including a stylish reception and dining space, embody a cohesive architectural vision for effortless guest experiences.
The Holiday Inn Express Portimão project is a contemporary hospitality redevelopment, featuring a streamlined façade with functional balconies and an external staircase. The interior embraces a modern aesthetic with minimalist furnishings, warm wood accents, and recessed lighting. Guest rooms incorporate ergonomic layouts, soft textures, and muted tones, ensuring comfort. The refined communal areas, including a stylish reception and dining space, embody a cohesive architectural vision for effortless guest experiences.
The Holiday Inn Express Portimão project is a contemporary hospitality redevelopment, featuring a streamlined façade with functional balconies and an external staircase. The interior embraces a modern aesthetic with minimalist furnishings, warm wood accents, and recessed lighting. Guest rooms incorporate ergonomic layouts, soft textures, and muted tones, ensuring comfort. The refined communal areas, including a stylish reception and dining space, embody a cohesive architectural vision for effortless guest experiences.
The Holiday Inn Express Portimão project is a contemporary hospitality redevelopment, featuring a streamlined façade with functional balconies and an external staircase. The interior embraces a modern aesthetic with minimalist furnishings, warm wood accents, and recessed lighting. Guest rooms incorporate ergonomic layouts, soft textures, and muted tones, ensuring comfort. The refined communal areas, including a stylish reception and dining space, embody a cohesive architectural vision for effortless guest experiences.
The Holiday Inn Express Portimão project is a contemporary hospitality redevelopment, featuring a streamlined façade with functional balconies and an external staircase. The interior embraces a modern aesthetic with minimalist furnishings, warm wood accents, and recessed lighting. Guest rooms incorporate ergonomic layouts, soft textures, and muted tones, ensuring comfort. The refined communal areas, including a stylish reception and dining space, embody a cohesive architectural vision for effortless guest experiences.
Discover how we can help enhance the growth of your investment portfolio.
Discover how we can help enhance the growth of your investment portfolio.
When you visit any website, it may store or retrieve information on your browser, mostly in the form of cookies. This information might be about you, your preferences or your device and is mostly used to make the site work as you expect it to. The information does not usually directly identify you, but it can give you a more personalised web experience. Because we respect your right to privacy, you can choose not to allow some types of cookies. Click on the different categories headings to find out more and change our default settings. However, blocking some types of cookies may impact your experience of the site and the services we are able to offer. More information
These cookies are necessary for the website to function and cannot be switched off in our systems. They are usually only set in response to actions made by you which amount to a request for services, such as setting your privacy preferences, logging in or filling in forms. You can set your browser to block or alert you about these cookies, but some parts of the site will not then work. These cookies do not store any personally identifiable information.
These cookies allow us to count visits and traffic sources so we can measure and improve the performance of our site. They help us to know which pages are the most and least popular and see how visitors move around the site. All information these cookies collect is aggregated and therefore anonymous. If you do not allow these cookies we will not know when you have visited our site, and will not be able to monitor its performance.
These cookies enable the website to provide enhanced functionality and personalization. They may be set by us or by third party providers whose services we have added to our pages. If you do not allow these cookies then some or all of these services may not function properly.
These cookies may be set by our site or by our advertising partners. They may be used by those companies to build a profile of your interests and show you relevant adverts on other sites. They do not store directly personal information, but are based on uniquely identifying your browser and internet device. If you do not allow these cookies, you will experience less targeted advertising.