Back to Portfolio

The
Investment

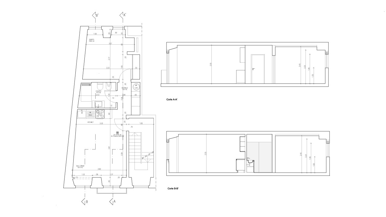
The Olarias Residential Development, located in Lisbon's historic Mouraria district, is a meticulously renovated duplex spanning 36.50 sqm across 3 floors. This solo unit offers modern efficiency with 2 bedrooms featuring en-suite bathrooms, private parking, storage, and smart home features like Daikin air conditioning and a Teka kitchen. ROI.

Year Built
2023
Purpose
Renovation
Gross Area
37 sqm
Units
1
Floors
1
Project Status
Completed
Year Built
2023
Purpose
Renovation
Gross Area
37 sqm
Units
1
Floors
1

The
Project:
3D Tour

Olarias is an exceptional investment opportunity, offering a beautifully remodeled duplex in the heart of Lisbon's vibrant Santa Maria Maior parish. This 73 m² unit combines modern design with comfort, featuring two spacious bedrooms with en-suite bathrooms, a generous living room and kitchen, and top-tier finishes throughout. With private parking, storage, and cutting-edge smart home features including Daikin air conditioning and a fully equipped Teka kitchen, this property sets a new standard for efficient, high-quality living. Olarias is a prime example of small-scale luxury, offering investors a rare opportunity in one of Lisbon’s most sought-after areas.

Construction
Phases

1. PRE-CONSTRUCTION
2. FLOORPLANS
3. CONSTRUCTION
4. POST CONSTRUCTION
1. PRE-CONSTRUCTION
2. FLOORPLANS
3. CONSTRUCTION
4. POST CONSTRUCTION

Location

Portugal Portugal
Matthew McGurn
Senior Investment Advisor

“Private Equity investments offer significant returns by driving growth, improving efficiency, and creating long-term value in promising companies.”

Let us contact you to customise our investment solutions to meet your specific needs.

Matthew McGurn
Senior Investment Advisor

Let us contact you to customise our investment solutions to meet your specific needs.